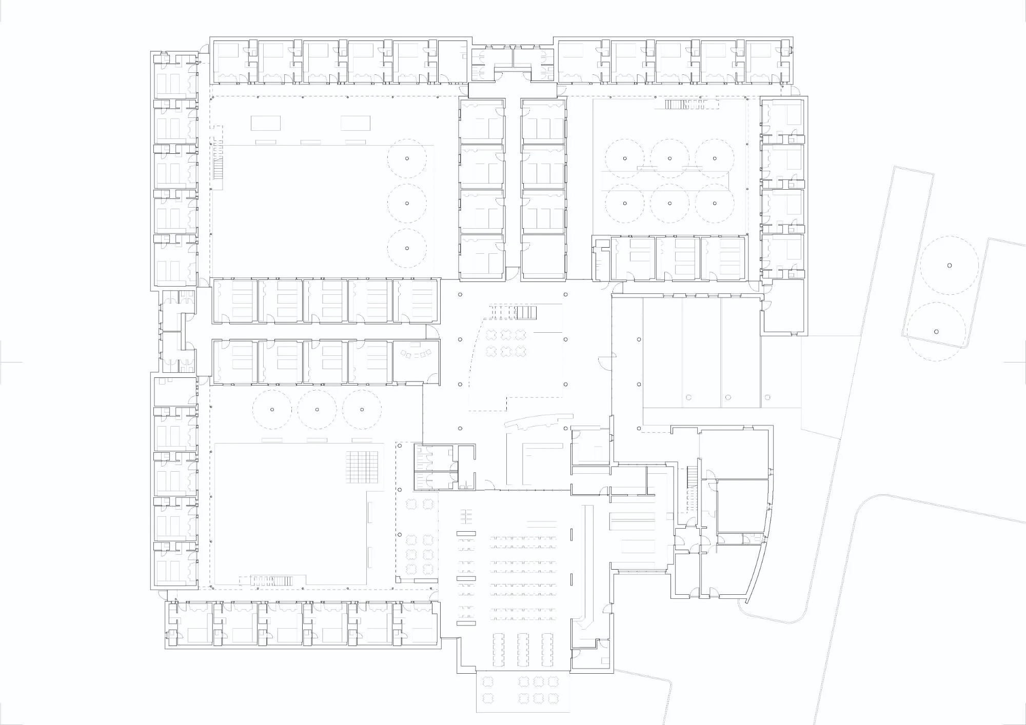
Jeunotel, a prototype hotel for young people at affordable prices (later open to all ages), 310-bed capacity, 160 restaurant seats. Prés-de-Vidy, Lausanne, Vaud. First prize in competition. 1990 25 juil. Écrit par Mónica Durán Voir en taille réelle Voir en taille réelle Voir en taille réelle Voir en taille réelle Voir en taille réelle Voir en taille réelle Return to the list of Built Projects Return to the list of Built Projects Mónica Durán https://visualbloom.co
Jeunotel, a prototype hotel for young people at affordable prices (later open to all ages), 310-bed capacity, 160 restaurant seats. Prés-de-Vidy, Lausanne, Vaud. First prize in competition. 1990 25 juil. Écrit par Mónica Durán Voir en taille réelle Voir en taille réelle Voir en taille réelle Voir en taille réelle Voir en taille réelle Voir en taille réelle Return to the list of Built Projects Return to the list of Built Projects Mónica Durán https://visualbloom.co