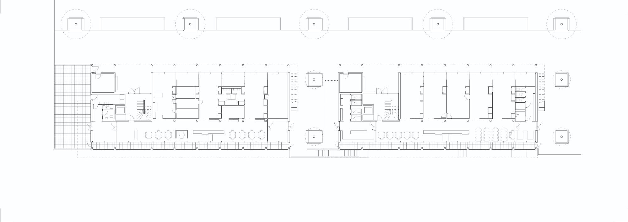
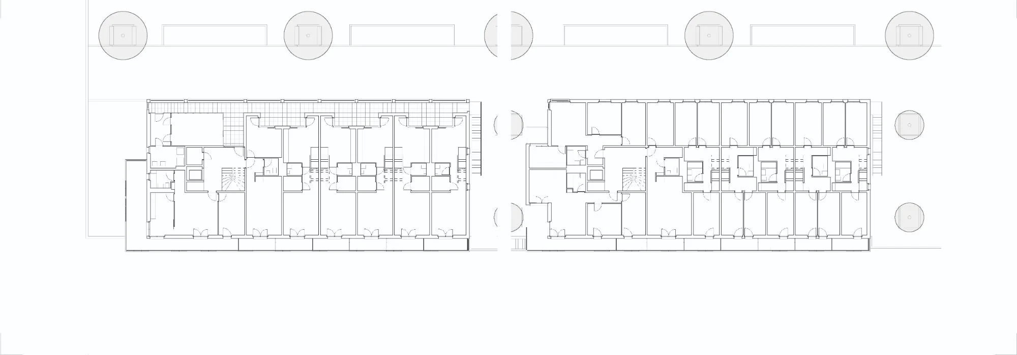
Construction of 100 housing units on the Prélaz platform, Lausanne. In collaboration with architect Roland Montrone. 1990 25 juil. Écrit par Mónica Durán Voir en taille réelle Voir en taille réelle Voir en taille réelle Voir en taille réelle Voir en taille réelle Voir en taille réelle Voir en taille réelle Voir en taille réelle Voir en taille réelle Return to the list of Built Projects Return to the list of Built Projects Mónica Durán https://visualbloom.co
Construction of 100 housing units on the Prélaz platform, Lausanne. In collaboration with architect Roland Montrone. 1990 25 juil. Écrit par Mónica Durán Voir en taille réelle Voir en taille réelle Voir en taille réelle Voir en taille réelle Voir en taille réelle Voir en taille réelle Voir en taille réelle Voir en taille réelle Voir en taille réelle Return to the list of Built Projects Return to the list of Built Projects Mónica Durán https://visualbloom.co