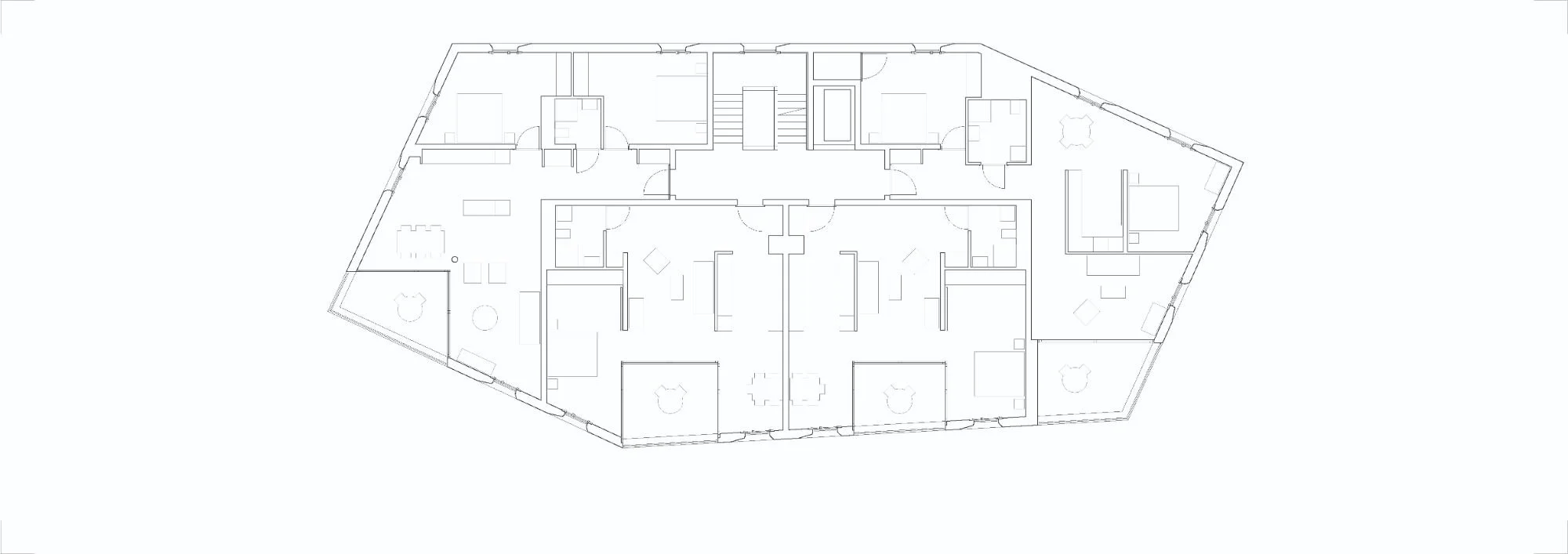
23 logement pour aînés au Ch. Des Grandes Roches 7, Lausanne VD. 2000 24 juin Écrit par Mónica Durán Voir en taille réelle Voir en taille réelle Voir en taille réelle Voir en taille réelle retour à la liste des bâtiments construits retour à la liste des bâtiments construits Mónica Durán https://visualbloom.co
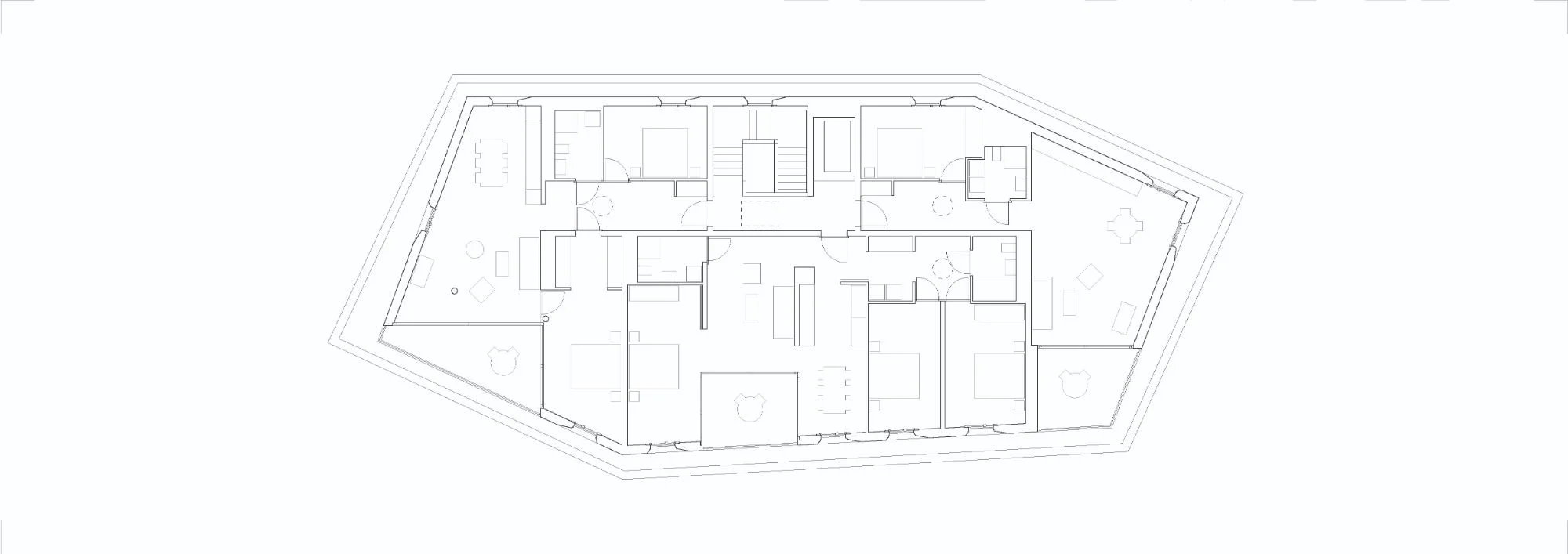
23 logement pour aînés au Ch. Des Grandes Roches 7, Lausanne VD. 2000 24 juin Écrit par Mónica Durán Voir en taille réelle Voir en taille réelle Voir en taille réelle Voir en taille réelle retour à la liste des bâtiments construits retour à la liste des bâtiments construits Mónica Durán https://visualbloom.co