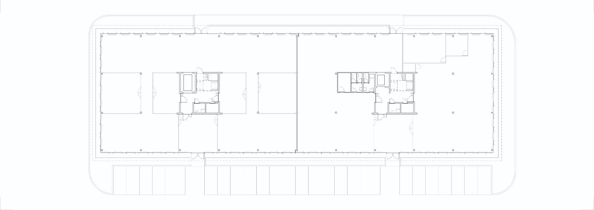
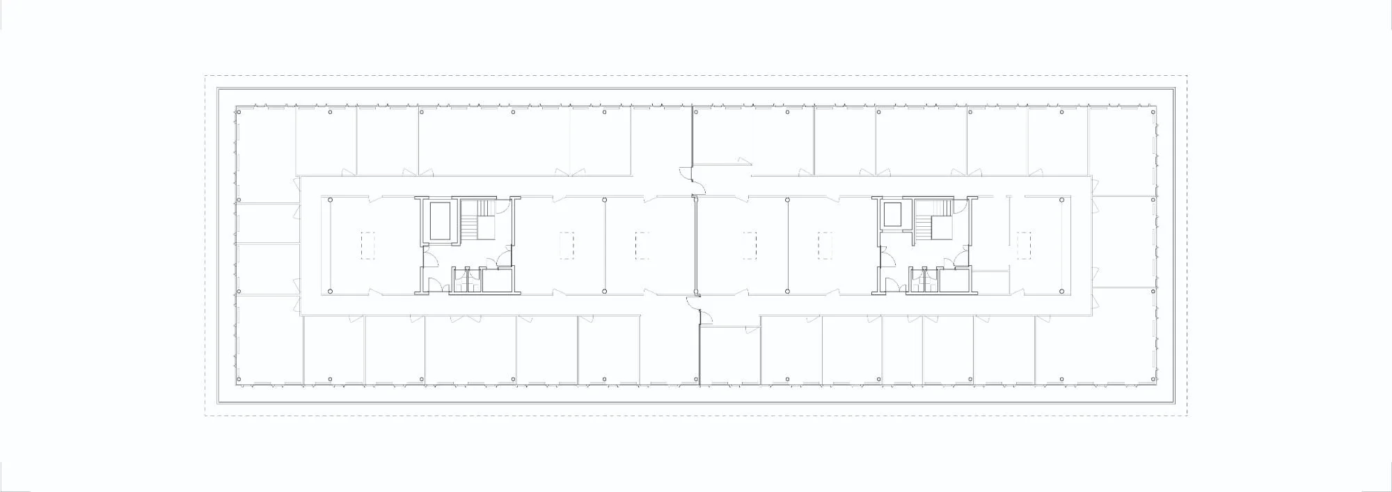
Construction of a tertiary-use building on Avenue du Tir-Fédéral, Ecublens, Vaud. Interior fit-out adaptable by tenants. Façade studies allow for flexible interior layouts. 2000 25 juil. Écrit par Mónica Durán Voir en taille réelle Voir en taille réelle Voir en taille réelle Voir en taille réelle Return to the list of Built Projects Return to the list of Built Projects Mónica Durán https://visualbloom.co
Construction of a tertiary-use building on Avenue du Tir-Fédéral, Ecublens, Vaud. Interior fit-out adaptable by tenants. Façade studies allow for flexible interior layouts. 2000 25 juil. Écrit par Mónica Durán Voir en taille réelle Voir en taille réelle Voir en taille réelle Voir en taille réelle Return to the list of Built Projects Return to the list of Built Projects Mónica Durán https://visualbloom.co